

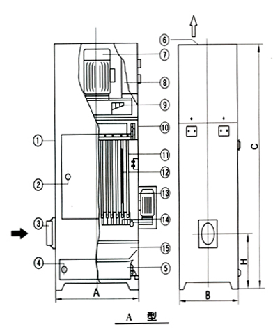
PL型單機袋式收塵器屬于機械抖動除塵器,其基本結構由風機、過濾器和集塵器三個部門組成,各部件都安裝在一個立式框架內,鋼板殼體,烘漆防銹,運行可靠,使用利便。風機采用離心風機,風量大,風壓高,并采用消聲措施,噪音小。過濾器采用扁布袋組,每個布袋內裝有彈簧鋼絲網,過濾效果好。清灰機構采用電念頭帶動偏心輪、連桿使布袋抖動而_沾在濾袋表面的粉塵。此除塵器設有檢驗門,利便檢驗和換袋。
.該機組現有十六種規格,分A、B兩型。A型設灰斗抽屜、B型不設灰斗抽屜。下部加法蘭;由用戶直接配接在折包口料倉倒料口,混料庫、噴砂箱、皮帶運輸調頭處等揚塵設備上_地除塵,粉塵直接回收。 PL-B型系列單機布袋收塵器技術性能 型號規格 PL-800/B PL-1100/B PL-1600/B PL-2200/B 風量M3/H 800 1100 1600 2200 資用力MMH2O >80 >85 >85 >100 過濾面積M2 4 7 10 12 風機電機功率KW 1.1 1.5 2.2 3 清灰電機功率KW 0.18 0.18 0.18 0.18 過濾風速M/MiN 3.33 2.62 2.66 3.05 凈化效率% >99.5 >99.5 >99.5 >99.5 噪聲db(A) <75 <75 <75 <75 外形尺寸A×B×CMM 530×520×1040 700×580×1100 740×580×1240 720×660×1330 底法蘭寸E×FMM 598×588 768×648 826×666 806×746 重量KG 280 330 470 600 價格(元) 6535 7245 7758 9276 注:1.貨用壓力即機真空度,系指機器可供使用的壓力,是機器進氣口實測靜壓的_值。 PL-B型系列單機布袋收塵器技術性能 型號規格 PL-2700/B PL-3200/B PL-4500/B PL-6000/B 風量M3/H 2700 3200 4500 6000-8000 資用壓力MMH2O >120 >100 >100 >150-120 過濾面積M2 13.6 15.3 21.5 25 風機電機功率KW 4 4 5.5 7.5 清灰電機功率KW 0.18 0.18 0.37 0.55 過濾風速M/MiN 3.30 3.48 3.40 3.33-4.5 凈化效率% >99.5 >99.5 >99.5 >99.5 噪聲db(A) <75 <75 <75 <80 外形尺 寸A×B×CMM 760×680×1380 790×700×1420 900×800×1550 1200×900×1720 底法蘭尺寸E×FMM 864×784 894×804 1004×905 1102×1002 重量KG 520 615 815 1190 價格(元) 10680 11393 12938 15901 注:1.貨用壓力即機真空度,系指機器可供使用的壓力,是機器進氣口實測靜壓的_值。 PL-A型系列單機布袋收塵器技術性能 型號規格 PL-800/A PL-1100/A PL-1600/A PL-2200/A 風量M3/H 800 1100 1600 2200 資用壓力MMH2O 80 85 85 100 過濾面積M2 4 7 10 12 進氣口尺寸mm Φ120 Φ140 Φ150 Φ200 進氣口中心離底距H 318 345 418 433 風機電機功率KW 1.1 1.5 2.2 3 清灰電機功率KW 0.18 0.18 0.18 0.18 過濾風速M/MiN 3.33 2.62 2.66 3.05 凈化效率% >99 >99 >99 >99 灰箱容積(1) 20 30 40 40 噪聲dB(A) 75 75 75 75 外形尺寸A×B×Cmm 530×520×1300 700×580×1400 740×580×1913 720×630×1696 重量Kg 400 550 600 730 價格(元) 6226 7677 8184 9332 PL-A型系列單機布袋收塵器技術性能 型號規格 PL-2700/A PL-3200/A PL-4500/A PL-6000/A 風量M3/H 2700 3200 4500 6000-8000 資用壓力MMH2O 120 100 100 150-120 過濾面積M2 13.6 15.3 21.5 30 進氣口尺寸mm 200×250 200×300 200×350 220×450 進氣口中心離底距H 458 478 478 1295 風機電機功率KW 4 4 5.5 7.5 清灰電機功率KW 0.18 0.18 0.18 0.55 過濾風速M/MiN 3.30 3.48 3.49 3.33×4.5 凈化效率% >99 >99 >99 99.5 灰箱容積(1) 55 55 70 105 噪聲dB(A) <75 <75 <75 <80 外形尺寸A×B×Cmm 760×680×1798 790×700×1888 900800×2028 120×900 重 量Kg 850 980 1040 1200 價 格(元) 10819 12018 14168 15858
工 作 原 理:
含塵氣體進入箱體,由扁布袋過濾器進行過濾,粉塵被阻留在濾袋外表面,已凈化的氣體通過濾袋進入風機,由風機吸入直接排入室內(也可接管排至室外)。
隨著過濾時間的增加、濾袋外表面沾附的粉塵也不斷增加、濾袋阻力也相應增加,從而影響除塵效果,采用自控清灰機構進行定時振打清灰或手控清灰機構停機后自動振打數十秒鐘,使沾在濾袋外表面的粉塵抖落下來,落到集塵容器(抽屜)中的粉塵由人工拉出_。
項目
2.凈化效率大于99.5%是用于中位徑100的滑石粉測定數值,測定值_為99.62%,平均為99.6。
3.機器風量是在資用壓力時的吸風量。
項 目
2.凈化效率大于99.5%是用于中位徑100的滑石粉測定數值,測定值_為99.62%,平均為99.6。
3.機器風量是在資用壓力時的吸風量。
項目
項 目

冀公網安備13098102000524號